Jasa Desain Rumah Bogor ( Desainer Bogor )
SADAR BANGUN adalah jasa desain dan bangun rumah profesional sejak tahun 2020. Kami memiliki tim arsitek dan kontraktor berpengalaman yang siap mewujudkan rumah impian Anda — nyaman, kuat, dan efisien biaya.
Kami melayani desain rumah di Jabodetabek dengan berbagai gaya seperti modern, minimalis, klasik, tropis, hingga industrial. Selain rumah tinggal, kami juga mengerjakan villa, kos-kosan, kantor, restoran, dan bangunan lainnya, baik online maupun offline.
Harga Mulai Dari 40.000 / M2 - 100.000 / M2
Prosedur Jasa Desain SADAR BANGUN Kontraktor
Tahap Sebelum Desain :
- Klien memberikan informasi berupa lokasi, ukuran lahan, jumlah lantai, kebutuhan ruang dan pilihan tema bangunan.
- Kami akan mengajukan gambaran harga desain.
- Jika gambaran harga desain sudah disepakati, kami akan lakukan pertemuan dan survey lokasi dengan klien. Atau meeting via online.
Tahap Awal
- Klien melakukan Pembayaran Tahap I DP 30% pada saat survey lokasi atau ketika harga desain sudah disepakati.
- Setelah Pembayaran Tahap I, kami akan membuatkan konsep keseluruhan bangunan dalam bentuk Gambar Denah.
- Pada tahap ini revisi Gambar Denah dipersilahkan 3x revisi.
Contoh Gambar Denah Lantai 1
Contoh Gambar Denah Lantai 2
Tahap Kedua
- Klien melakukan Pembayaran Tahap II 40% pada saat Gambar Denah selesai dikerjakan.
- Setelah Pembayaran Tahap II, kami akan membuatkan Gambar 3D.
- Pada tahap ini revisi tampilan Gambar 3D dipersilahkan sebanyak 3x.
Contoh Gambar 3D Exterior
Contoh Gambar 3D Exterior
Tahap Ketiga
- Klien melakukan Pembayaran Tahap III 30% pada saat Gambar 3D selesai dikerjakan.
- Setelah Pembayaran Tahap III, kami membuatkan Gambar Kerja (Detail struktur, arsitektur, instalasi air dan listrik) dan RAB (Rencana Anggaran Biaya).
- Dokumen akan diberikan dalam bentuk hardcopy print out A3 dan softcopy format PDF.
- Pada tahap ini tidak ada revisi Gambar dan RAB.
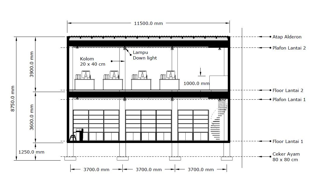
Contoh Gambar Kerja Bangunan
Contoh Gambar Kerja Interior
Contoh RAB
Alamat
Jl Muara Tegal Rt02/Rw01,Sindangrasa, Bogor Timur
Jam Kerja
Senin - Jum'at : 08.00 – 22.00 Sabtu - Minggu : Tutup
Alamat Email
sadarbangun700@gmail.com
No Handphone
0813-1960-2108
